Search

Leave a Message

Thank you for your message. I will be in touch with you shortly.

Property Description

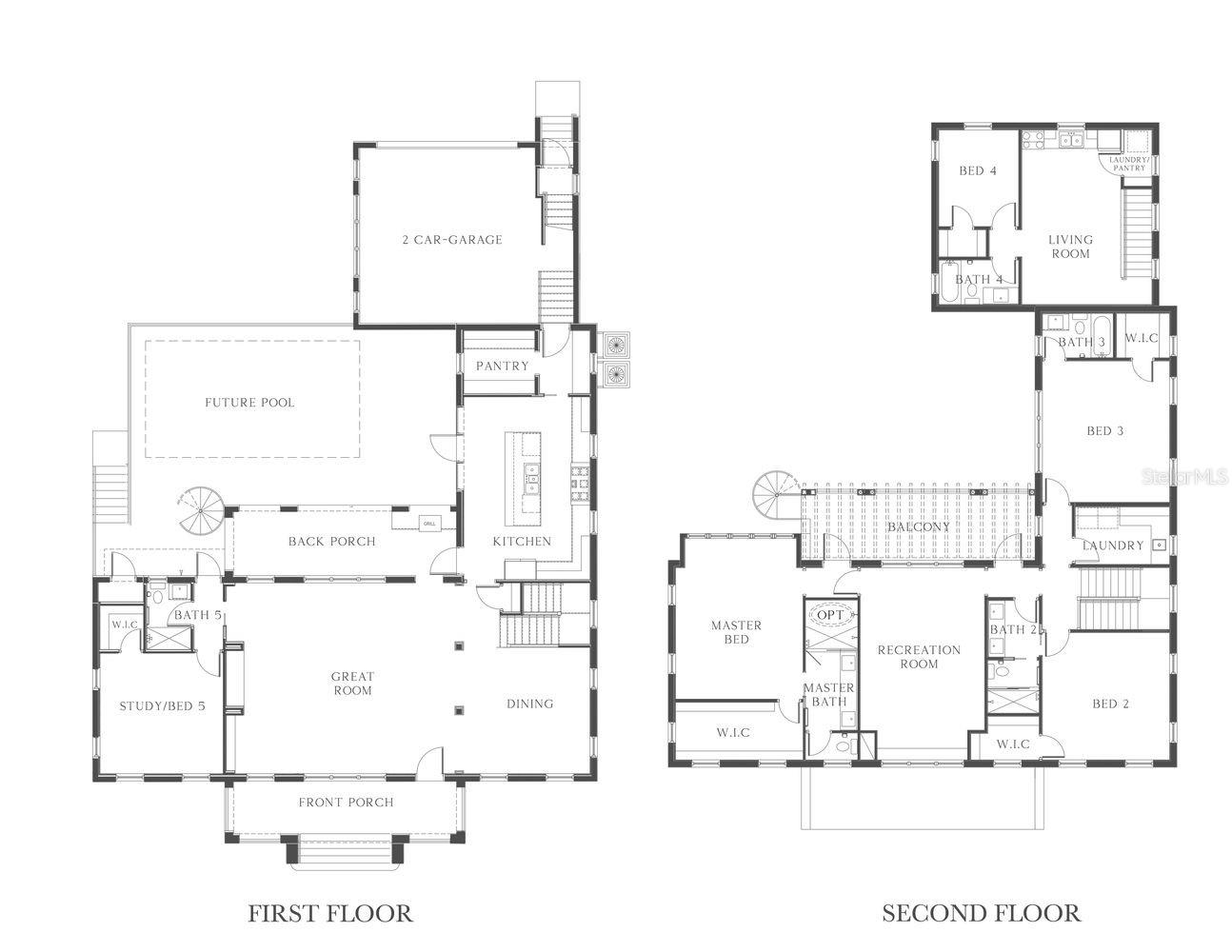
Under Construction. Est. Completion: February 2026 | This is a CANOPY SIGNATURE HOME in collaboration with LAUREN LEITNER DESIGN Would you like to live steps from BEACH DRIVE in St. Petersburg's most sought-after neighborhood of Historic Old Northeast? Don't miss the chance to make this your dream home with Canopy Builders--St. Pete's most trusted name in luxury home construction. This ALL BLOCK new build on a CORNER lot (80 x 110) features 4 Bedrooms + Loft, 4 Baths, an oversized 2-car garage, a raised POOL & SPA, plus an Accessory Dwelling Unit (ADU) with an additional 1 bedroom and 1 bath. The main home offers 3,633 sqft of living space and 571 sqft in the ADU (total: 4,204 sqft). The ADU also includes a full kitchen, laundry area, and generous walk-in closet. Set among picturesque brick streets and mature oaks, this stunning home is surrounded by charm and architectural beauty. You're just a 10-minute WALK to downtown St. Pete and a short stroll to scenic waterfront parks. A welcoming front porch invites you to relax and enjoy the neighborhood's vibe. Step through the front door with into an exquisite open-concept great room and dining area, where sophistication meets comfort. To the left, a beautifully appointed guest suite/office features a spacious walk-in closet and a bathroom just outside the room. Flowing seamlessly from the great room with stained white oak beams and tongue and groove ceiling, the chef's kitchen--with Calcutta marble counters, a La Cornue range, and custom cabinetry--is equipped with a walk-in pantry and designed for both style and functionality. Just off the kitchen, a mudroom offers access to the garage and the perfect space to keep daily essentials organized. Upstairs, you'll find two guest bedrooms and a laundry room with sage colored cabinetry and a built-in sink for added convenience. Down the hall, a loft offers endless potential for entertainment or relaxation. The luxurious primary suite is a true sanctuary, boasting dual walk-in closets and a spa-inspired ensuite featuring a fluted white oak vanity, gold hardware, and unique tile, with dual vanities and a private water closet. Step onto the expansive balcony and take in the view of your resort-style backyard. A winding spiral staircase leads down to your private outdoor oasis--complete with a shimmering pool, spa, and fully equipped outdoor kitchen. Above the garage, the spacious 1 bedroom, 1 bathroom ADU that provides the perfect retreat for guests or additional living space. Several key features have already been planned, a tankless gas water heater, impact-resistant windows, and engineered hardwood flooring throughout. Dual digital thermostats allow independent climate control on both levels. Additional luxury elements include 10' ceilings on both floors, vaulted ceilings in the loft, primary suite, and bedroom 3, as well as 8' interior doors. Canopy's signature gas sconce adds an elegant touch to the front porch. The expansive backyard, featuring a fully designed pool & spa and outdoor kitchen, offers ample space for lounging and entertaining. Enjoy a 20-minute drive to St. Pete Beach and only 20 minutes to Tampa. Don't miss the opportunity to make this breathtaking home yours today!

Overview

Property Status
Sold
Lot Size
8,800 Sq.Ft.
MLS ID
TB8479490
Property Type
Residential
Year Built
2026

Features & Amenities

Total Area
4,204 Sq.Ft.
Neighborhood
Historic Old Northeast
Stories
2
Garage Spaces
2.0
Water Source
Public
Utilities
Natural Gas Connected, Public
Pool
Gunite, Heated, Tile
Roof
Shingle
Heat Type
Central
Air Conditioning
Central Air
Laundry Room
Laundry Room
Fireplace
Gas, Living Room
Appliances
Built-In Oven, Dishwasher, Gas Water Heater, Microwave, Range, Range Hood, Refrigerator, Tankless Water Heater
Other Interior Features
Crown Molding, High Ceilings, Living Room/Dining Room Combo, Open Floorplan, Primary Bedroom Upstairs, Thermostat, Vaulted Ceiling(s), Walk-In Closet(s)
Sewer
Public Sewer
Substructure
Slab, Stem Wall
Other Exterior Features
Sidewalk
Sales Price
$3,350,000
Real Estate Tax
$25,353/yr

Downloads

805 17TH AVE NE

Schedule a Tour

I would love to help you see this beautiful home! As a full-service real estate agent, I can help you tour. Please submit an offer, and answer questions about the buying process.

Thank you

for your interest in 805 17TH AVE NE, ST PETERSBURG, FL 33704

805 17TH AVE NE
Navigate
Historic Old Northeast

Explore Historic Old Northeast

27.7902° N, 82.6348° W

read more
805 17TH AVE NE
explore in 3d

I'm Interested In

805 17TH AVE NE

Property Spotlight

Browse My Portfolio

  • 705 17TH AVE NE Sold

    $3,500,000

    705 17TH AVE NE, ST PETERSBURG, FL 33704

    • 5 Beds
    • 6 Baths
    • 4,574 Sq.Ft.
  • 805 17TH AVE NE Sold

    $3,350,000

    805 17TH AVE NE, ST PETERSBURG, FL 33704

    • 5 Beds
    • 5 Baths
    • 4,204 Sq.Ft.
  • 206 13TH AVE NE Sold

    $2,920,000

    206 13TH AVE NE, ST PETERSBURG, FL 33701

    • 5 Beds
    • 5 Baths
    • 3,777 Sq.Ft.
  • 109 11TH AVE N Sold

    $2,825,000

    109 11TH AVE N, ST PETERSBURG, FL 33701

    • 4 Beds
    • 4 Baths
    • 3,539 Sq.Ft.
  • 345 11TH AVE NE Pending

    $2,699,000

    345 11TH AVE NE, ST PETERSBURG, FL 33701

    • 5 Beds
    • 5 Baths
    • 3,409 Sq.Ft.
  • 115 27TH AVE NE Sold

    $2,495,000

    115 27TH AVE NE, ST PETERSBURG, FL 33704

    • 3 Beds
    • 5 Baths
    • 3,099 Sq.Ft.
  • 138 16TH AVENUE N Sold

    $2,225,000

    138 16TH AVE N, ST PETERSBURG, FL 33704

    • 5 Beds
    • 5 Baths
    • 3,400 Sq.Ft.
  • 321 12TH AVE NE Sold

    $1,971,000

    321 12TH AVE NE, ST PETERSBURG, FL 33701

    • 3 Beds
    • 3 Baths
    • 2,600 Sq.Ft.
  • 160 26TH AVE N Sold

    $1,950,000

    160 26TH AVE N, ST PETERSBURG, FL 33704

    • 5 Beds
    • 4 Baths
    • 3,786 Sq.Ft.
  • 819 38TH AVE NE Pending

    $1,950,000

    819 38TH AVE NE, ST PETERSBURG, FL 33701

    • 5 Beds
    • 4 Baths
    • 3,120 Sq.Ft.
  • 639 43RD AVE N For Sale

    $1,895,000

    639 43RD AVE N, ST PETERSBURG, FL 33703

    • 5 Beds
    • 5 Baths
    • 4,518 Sq.Ft.
  • 555 5TH AVENUE NE Unit: 414 Sold

    $1,875,000

    555 5TH AVE NE #414, ST PETERSBURG, FL 33701

    • 3 Beds
    • 3 Baths
    • 3,373 Sq.Ft.
  • 115 11TH AVENUE N Sold

    $1,850,000

    115 11TH AVE N, ST PETERSBURG, FL 33701

    • 4 Beds
    • 4 Baths
    • 2,421 Sq.Ft.
  • 123 14TH AVE NE Sold

    $1,850,000

    123 14TH AVE NE, ST PETERSBURG, FL 33701

    • 5 Beds
    • 3 Baths
    • 3,202 Sq.Ft.
  • 2011 10TH ST N For Sale

    $1,850,000

    2011 10TH ST N, ST PETERSBURG, FL 33704

    • 6 Beds
    • 4 Baths
    • 3,402 Sq.Ft.
  • 612 29TH AVE N Pending

    $1,850,000

    612 29TH AVE N, ST PETERSBURG, FL 33701

    • 5 Beds
    • 4 Baths
    • 3,394 Sq.Ft.
  • 146 32ND AVENUE N Sold

    $1,844,000

    146 32ND AVE N, ST PETERSBURG, FL 33704

    • 6 Beds
    • 5 Baths
    • 3,718 Sq.Ft.
  • 711 12TH AVE N For Sale

    $1,799,000

    711 12TH AVE N, ST PETERSBURG, FL 33701

    • 6 Beds
    • 5 Baths
    • 3,409 Sq.Ft.
  • 201 30TH AVE N Sold

    $1,750,000

    201 30TH AVE N, ST PETERSBURG, FL 33701

    • 5 Beds
    • 5 Baths
    • 3,409 Sq.Ft.
  • 2590 SUNRISE DRIVE SE Sold

    $1,749,000

    2590 SUNRISE DR SE, ST PETERSBURG, FL 33705

    • 4 Beds
    • 4 Baths
    • 3,343 Sq.Ft.
  • 115 19TH AVE SE Sold

    $1,695,000

    115 19TH AVE SE, ST PETERSBURG, FL 33701

    • 6 Beds
    • 4 Baths
    • 3,573 Sq.Ft.
  • 1233 47TH AVE N Pending

    $1,695,000

    1233 47TH AVE N, ST PETERSBURG, FL 33703

    • 4 Beds
    • 4 Baths
    • 3,017 Sq.Ft.
  • 421 25TH AVE N Pending

    $1,695,000

    421 25TH AVE N, ST PETERSBURG, FL 33704

    • 6 Beds
    • 4 Baths
    • 3,465 Sq.Ft.
  • 116 19TH AVE SE Sold

    $1,675,000

    116 19TH AVE SE, ST PETERSBURG, FL 33705

    • 6 Beds
    • 4 Baths
    • 3,434 Sq.Ft.
  • 8190 CAUSEWAY BOULEVARD S Sold

    $1,650,000

    8190 CAUSEWAY BOULEVARD S, ST PETERSBURG, FL 33707

    • 2 Beds
    • 2 Baths
    • 1,607 Sq.Ft.
  • 123 5TH AVE N For Sale

    $1,545,000

    123 5TH AVE N, ST PETERSBURG, FL 33701

    • 3 Beds
    • 4 Baths
    • 2,376 Sq.Ft.
  • 605 25TH AVE N Sold

    $1,500,000

    605 25TH AVE N, ST PETERSBURG, FL 33704

    • 3 Beds
    • 3 Baths
    • 2,852 Sq.Ft.
  • 2436 BURLINGTON AVE N Sold

    $1,480,000

    2436 BURLINGTON AVE N, ST PETERSBURG, FL 33713

    • 4 Beds
    • 5 Baths
    • 2,947 Sq.Ft.
  • 545 19TH AVE NE Sold

    $1,450,000

    545 19TH AVE NE, ST PETERSBURG, FL 33704

    • 3 Beds
    • 3 Baths
    • 2,638 Sq.Ft.
  • 1002 W VIRGINIA AVE Sold

    $1,399,990

    1002 W VIRGINIA AVE, TAMPA, FL 33603

    • 5 Beds
    • 5 Baths
    • 3,486 Sq.Ft.
  • 621 37TH AVE N Sold

    $1,399,000

    621 37TH AVE N, ST PETERSBURG, FL 33704

    • 5 Beds
    • 3 Baths
    • 2,990 Sq.Ft.
  • 3223 MELTON ST N Pending

    $1,395,000

    3223 MELTON ST N, ST PETERSBURG, FL 33704

    • 5 Beds
    • 3 Baths
    • 2,840 Sq.Ft.
  • 615 37TH AVE N Sold

    $1,395,000

    615 37TH AVE N, ST PETERSBURG, FL 33704

    • 5 Beds
    • 3 Baths
    • 2,964 Sq.Ft.
  • 744 47TH AVE N Sold

    $1,395,000

    744 47TH AVE N, ST PETERSBURG, FL 33703

    • 5 Beds
    • 4 Baths
    • 3,442 Sq.Ft.
  • 876 44TH AVE N Sold

    $1,395,000

    868 44TH AVE N, ST PETERSBURG, FL 33703

    • 6 Beds
    • 4 Baths
    • 3,362 Sq.Ft.
  • 201 34TH AVE N Sold

    $1,375,000

    201 34TH AVE N, ST PETERSBURG, FL 33704

    • 4 Beds
    • 3 Baths
    • 2,871 Sq.Ft.
  • 428 11TH AVENUE NE Sold

    $1,370,000

    428 11TH AVE NE, ST PETERSBURG, FL 33701

    • 3 Beds
    • 4 Baths
    • 2,251 Sq.Ft.
  • 203 34TH AVE N Sold

    $1,352,000

    203 34TH AVE N, ST PETERSBURG, FL 33704

    • 4 Beds
    • 3 Baths
    • 2,834 Sq.Ft.
  • 745 39TH AVENUE N Sold

    $1,341,000

    745 39TH AVE N, ST PETERSBURG, FL 33703

    • 5 Beds
    • 3 Baths
    • 2,808 Sq.Ft.
  • 1428 50TH AVE N Sold

    $1,325,000

    1428 50TH AVE N, ST PETERSBURG, FL 33703

    • 5 Beds
    • 3 Baths
    • 2,964 Sq.Ft.
  • 466 33RD AVENUE N Sold

    $1,325,000

    466 33RD AVE N, ST PETERSBURG, FL 33704

    • 4 Beds
    • 3 Baths
    • 2,753 Sq.Ft.
  • 2172 HARBOR VIEW DR Sold

    $1,312,500

    2172 HARBOR VIEW DR, DUNEDIN, FL 34698

    • 3 Beds
    • 3 Baths
    • 1,962 Sq.Ft.
  • 428 11TH AVENUE NE Sold

    $1,305,000

    428 11TH AVE NE, ST PETERSBURG, FL 33701

    • 3 Beds
    • 4 Baths
    • 2,251 Sq.Ft.
  • 420 11TH AVENUE NE Sold

    $1,295,000

    420 11TH AVE NE, ST PETERSBURG, FL 33701

    • 3 Beds
    • 4 Baths
    • 2,367 Sq.Ft.
  • 916 25TH AVENUE N Sold

    $1,295,000

    916 25TH AVE N, ST PETERSBURG, FL 33704

    • 4 Beds
    • 5 Baths
    • 2,788 Sq.Ft.
  • 876 44TH AVE N Sold

    $1,277,000

    876 44TH AVE N, ST PETERSBURG, FL 33703

    • 4 Beds
    • 3 Baths
    • 2,833 Sq.Ft.
  • 2533 DARTMOUTH AVE N Sold

    $1,275,000

    2533 DARTMOUTH AVE N, ST PETERSBURG, FL 33713

    • 4 Beds
    • 3 Baths
    • 2,833 Sq.Ft.
  • 1717 MASSACHUSETTS AVENUE NE Sold

    $1,225,000

    1717 MASSACHUSETTS AVE NE, ST PETERSBURG, FL 33703

    • 4 Beds
    • 3 Baths
    • 2,820 Sq.Ft.
  • 116 SE 20TH AVE SE Sold

    $1,220,000

    116 SE 20TH AVE SE, ST PETERSBURG, FL 33705

    • 4 Beds
    • 5 Baths
    • 2,679 Sq.Ft.
  • 810 48TH AVENUE N Sold

    $1,160,000

    810 48TH AVE N, ST PETERSBURG, FL 33703

    • 4 Beds
    • 3 Baths
    • 2,833 Sq.Ft.
View All

Follow Me On Instagram