Search

Leave a Message

Thank you for your message. I will be in touch with you shortly.

Property Description

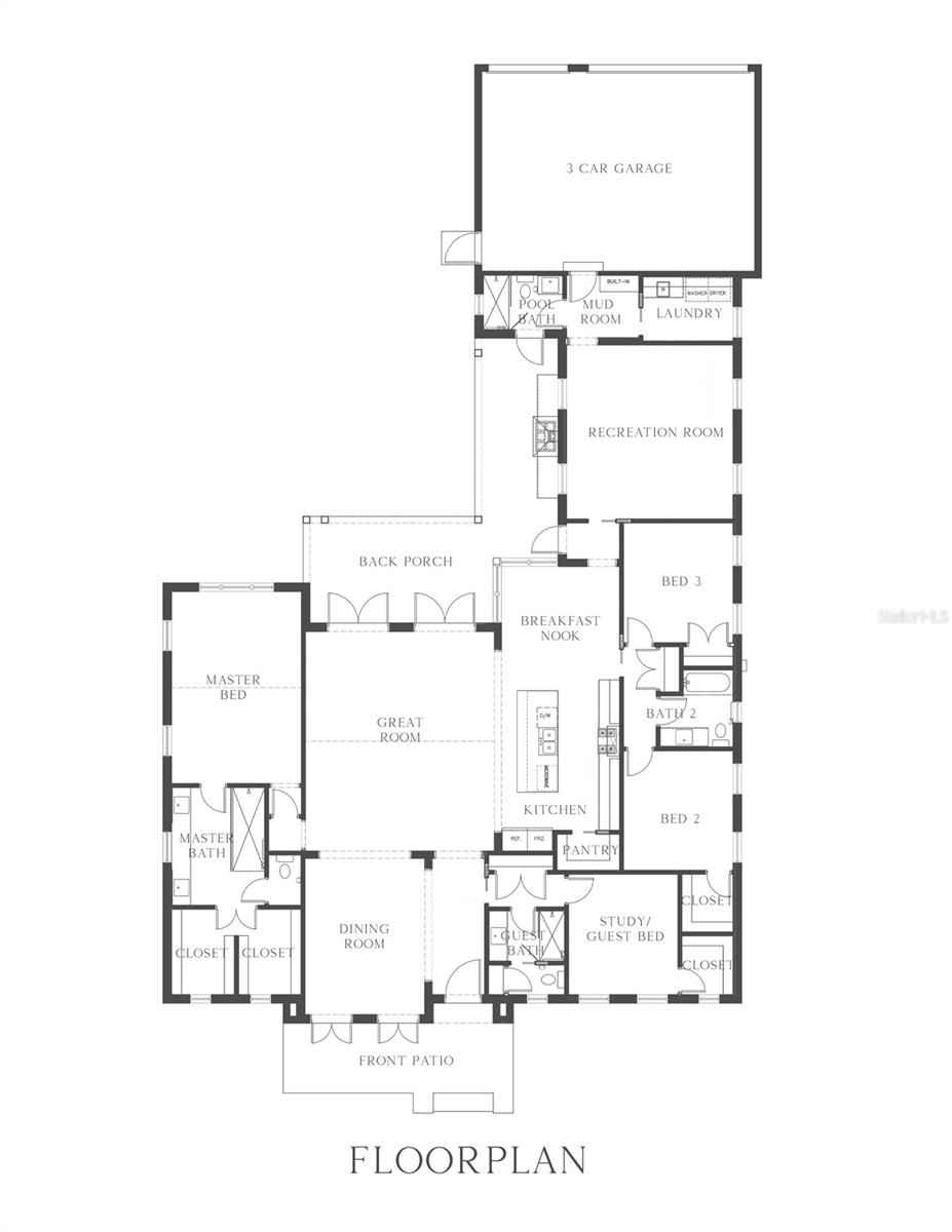
Under contract-accepting backup offers. Pre-Construction. To be built. Est. Completion: Jan 2027. Would you love to live in St. Petersburg's coveted Euclid Heights in a SINGLE-STORY HOME? Here's your chance to make that dream a reality with Canopy Builders - St. Petersburg's most TRUSTED name in luxury home construction. Located in a NON-FLOOD AND NON-EVACUATION ZONE, this brand-new ALL BLOCK build sits on an expansive lot measuring 70 x 127 sq ft and offers 4 Bedrooms + Study + Recreation room, 4 Baths, and an oversized 3-car garage. The main residence boasts a total of 3,033 sq ft under air. Surrounded by the neighborhood's charming tree lined streets, this home blends modern luxury with timeless character. All of this, just a 10-minute drive to downtown St. Pete. Buyers currently have an EXCLUSIVE opportunity to personalize this home with the expertise of an in-house designer from the Canopy Builders team--but this chance won't last long. A generous design allowance allows for the selection of customized finishes, ensuring every detail aligns seamlessly with the home's luxury specifications. Entering through the front corridor, you're welcomed into the spacious great room, featuring vaulted ceilings. Off the great room sits the formal dining room and kitchen, complete with a breakfast nook, pantry, gas oven and range, and a large center island ideal for both cooking and gathering. The primary suite, located off the great room, also offers vaulted ceilings, dual closets, and a luxurious en suite bathroom with dual vanities. Featuring a split floor plan, the study or guest bedroom includes a full closet and a detached bathroom for added flexibility. Bedrooms two and three share a bathroom, providing both function and privacy. Toward the back of the home, a recreation room offers multipurpose space--perfect for entertaining, hobbies, or a playroom. Beyond the recreation room, you'll find a full pool bathroom with shower, a mudroom with built-in cabinetry, and a laundry room with a sink for everyday convenience. Outside, double doors from the great room open to the covered back porch, featuring an outdoor kitchen--ideal for relaxing or entertaining by the pool. Several key features have already been planned including a tankless gas water heater, impact-resistant windows, and engineered hardwood flooring throughout. Additional luxury elements include 10' ceilings throughout , 12' ceilings in the great room and primary bedroom, as well as 8' interior doors. Canopy's signature gas sconce adds an elegant touch to the front porch. The large backyard offers ample space for lounging and entertaining. Enjoy a 10 minute drive to downtown St. Pete, 20-minute drive to St. Pete Beach and only 20 minutes to Tampa. Don't miss the opportunity to make this breathtaking home yours today!

Overview

Property Status
Pending
Lot Size
8,891 Sq.Ft.
MLS ID
TB8438885
Property Type
Residential
Year Built
2026

Features & Amenities

Total Area
4,015 Sq.Ft.
Stories
1
Garage Spaces
3.0
Water Source
Public
Utilities
Public
Roof
Shingle
Heat Type
Central
Air Conditioning
Central Air
Laundry Room
Inside, Laundry Room
Appliances
Dishwasher, Disposal, Exhaust Fan, Gas Water Heater, Microwave, Range, Range Hood, Refrigerator, Tankless Water Heater
Other Interior Features
Crown Molding, Eat-in Kitchen, High Ceilings, In Wall Pest System, Kitchen/Family Room Combo, Open Floorplan, Primary Bedroom Main Floor, Solid Surface Counters, Solid Wood Cabinets, Stone Counters, Thermostat, Walk-In Closet(s)
Sewer
Public Sewer
Substructure
Slab
Other Exterior Features
Lighting, Outdoor Grill, Outdoor Kitchen, Private Mailbox, Rain Gutters, Sidewalk, Sprinkler Metered
Sales Price
$1,695,000
Real Estate Tax
$906/yr

Downloads

1233 47TH AVE N

Schedule a Tour

I would love to help you see this beautiful home! As a full-service real estate agent, I can help you tour. Please submit an offer, and answer questions about the buying process.

Thank you

for your interest in 1233 47TH AVE N, ST PETERSBURG, FL 33703

1233 47TH AVE N
Navigate
  • The primary suite, located off the great room, also offers vaulted ceilings.

    Plotkin Homes

Mortgage Calculator

Estimate your monthly mortgage payment, including the principal and interest, property taxes, and HOA. Adjust the values to generate a more accurate rate.
$0,000 Your Payment 20 15 65
$0,000 Your Payment

I'm Interested In

1233 47TH AVE N

Property Spotlight

Browse My Portfolio

  • 705 17TH AVE NE Sold

    $3,500,000

    705 17TH AVE NE, ST PETERSBURG, FL 33704

    • 5 Beds
    • 6 Baths
    • 4,574 Sq.Ft.
  • 805 17TH AVE NE Sold

    $3,350,000

    805 17TH AVE NE, ST PETERSBURG, FL 33704

    • 5 Beds
    • 5 Baths
    • 4,204 Sq.Ft.
  • 206 13TH AVE NE Sold

    $2,920,000

    206 13TH AVE NE, ST PETERSBURG, FL 33701

    • 5 Beds
    • 5 Baths
    • 3,777 Sq.Ft.
  • 109 11TH AVE N Sold

    $2,825,000

    109 11TH AVE N, ST PETERSBURG, FL 33701

    • 4 Beds
    • 4 Baths
    • 3,539 Sq.Ft.
  • 345 11TH AVE NE Pending

    $2,699,000

    345 11TH AVE NE, ST PETERSBURG, FL 33701

    • 5 Beds
    • 5 Baths
    • 3,409 Sq.Ft.
  • 115 27TH AVE NE Sold

    $2,495,000

    115 27TH AVE NE, ST PETERSBURG, FL 33704

    • 3 Beds
    • 5 Baths
    • 3,099 Sq.Ft.
  • 138 16TH AVENUE N Sold

    $2,225,000

    138 16TH AVE N, ST PETERSBURG, FL 33704

    • 5 Beds
    • 5 Baths
    • 3,400 Sq.Ft.
  • 321 12TH AVE NE Sold

    $1,971,000

    321 12TH AVE NE, ST PETERSBURG, FL 33701

    • 3 Beds
    • 3 Baths
    • 2,600 Sq.Ft.
  • 160 26TH AVE N Sold

    $1,950,000

    160 26TH AVE N, ST PETERSBURG, FL 33704

    • 5 Beds
    • 4 Baths
    • 3,786 Sq.Ft.
  • 819 38TH AVE NE Pending

    $1,950,000

    819 38TH AVE NE, ST PETERSBURG, FL 33701

    • 5 Beds
    • 4 Baths
    • 3,120 Sq.Ft.
  • 639 43RD AVE N For Sale

    $1,895,000

    639 43RD AVE N, ST PETERSBURG, FL 33703

    • 5 Beds
    • 5 Baths
    • 4,518 Sq.Ft.
  • 555 5TH AVENUE NE Unit: 414 Sold

    $1,875,000

    555 5TH AVE NE #414, ST PETERSBURG, FL 33701

    • 3 Beds
    • 3 Baths
    • 3,373 Sq.Ft.
  • 115 11TH AVENUE N Sold

    $1,850,000

    115 11TH AVE N, ST PETERSBURG, FL 33701

    • 4 Beds
    • 4 Baths
    • 2,421 Sq.Ft.
  • 123 14TH AVE NE Sold

    $1,850,000

    123 14TH AVE NE, ST PETERSBURG, FL 33701

    • 5 Beds
    • 3 Baths
    • 3,202 Sq.Ft.
  • 2011 10TH ST N For Sale

    $1,850,000

    2011 10TH ST N, ST PETERSBURG, FL 33704

    • 6 Beds
    • 4 Baths
    • 3,402 Sq.Ft.
  • 612 29TH AVE N Pending

    $1,850,000

    612 29TH AVE N, ST PETERSBURG, FL 33701

    • 5 Beds
    • 4 Baths
    • 3,394 Sq.Ft.
  • 146 32ND AVENUE N Sold

    $1,844,000

    146 32ND AVE N, ST PETERSBURG, FL 33704

    • 6 Beds
    • 5 Baths
    • 3,718 Sq.Ft.
  • 711 12TH AVE N For Sale

    $1,799,000

    711 12TH AVE N, ST PETERSBURG, FL 33701

    • 6 Beds
    • 5 Baths
    • 3,409 Sq.Ft.
  • 201 30TH AVE N Sold

    $1,750,000

    201 30TH AVE N, ST PETERSBURG, FL 33701

    • 5 Beds
    • 5 Baths
    • 3,409 Sq.Ft.
  • 2590 SUNRISE DRIVE SE Sold

    $1,749,000

    2590 SUNRISE DR SE, ST PETERSBURG, FL 33705

    • 4 Beds
    • 4 Baths
    • 3,343 Sq.Ft.
  • 115 19TH AVE SE Sold

    $1,695,000

    115 19TH AVE SE, ST PETERSBURG, FL 33701

    • 6 Beds
    • 4 Baths
    • 3,573 Sq.Ft.
  • 1233 47TH AVE N Pending

    $1,695,000

    1233 47TH AVE N, ST PETERSBURG, FL 33703

    • 4 Beds
    • 4 Baths
    • 3,017 Sq.Ft.
  • 421 25TH AVE N Pending

    $1,695,000

    421 25TH AVE N, ST PETERSBURG, FL 33704

    • 6 Beds
    • 4 Baths
    • 3,465 Sq.Ft.
  • 116 19TH AVE SE Sold

    $1,675,000

    116 19TH AVE SE, ST PETERSBURG, FL 33705

    • 6 Beds
    • 4 Baths
    • 3,434 Sq.Ft.
  • 8190 CAUSEWAY BOULEVARD S Sold

    $1,650,000

    8190 CAUSEWAY BOULEVARD S, ST PETERSBURG, FL 33707

    • 2 Beds
    • 2 Baths
    • 1,607 Sq.Ft.
  • 123 5TH AVE N For Sale

    $1,545,000

    123 5TH AVE N, ST PETERSBURG, FL 33701

    • 3 Beds
    • 4 Baths
    • 2,376 Sq.Ft.
  • 605 25TH AVE N Sold

    $1,500,000

    605 25TH AVE N, ST PETERSBURG, FL 33704

    • 3 Beds
    • 3 Baths
    • 2,852 Sq.Ft.
  • 2436 BURLINGTON AVE N Sold

    $1,480,000

    2436 BURLINGTON AVE N, ST PETERSBURG, FL 33713

    • 4 Beds
    • 5 Baths
    • 2,947 Sq.Ft.
  • 545 19TH AVE NE Sold

    $1,450,000

    545 19TH AVE NE, ST PETERSBURG, FL 33704

    • 3 Beds
    • 3 Baths
    • 2,638 Sq.Ft.
  • 1002 W VIRGINIA AVE Sold

    $1,399,990

    1002 W VIRGINIA AVE, TAMPA, FL 33603

    • 5 Beds
    • 5 Baths
    • 3,486 Sq.Ft.
  • 621 37TH AVE N Sold

    $1,399,000

    621 37TH AVE N, ST PETERSBURG, FL 33704

    • 5 Beds
    • 3 Baths
    • 2,990 Sq.Ft.
  • 3223 MELTON ST N Pending

    $1,395,000

    3223 MELTON ST N, ST PETERSBURG, FL 33704

    • 5 Beds
    • 3 Baths
    • 2,840 Sq.Ft.
  • 615 37TH AVE N Sold

    $1,395,000

    615 37TH AVE N, ST PETERSBURG, FL 33704

    • 5 Beds
    • 3 Baths
    • 2,964 Sq.Ft.
  • 744 47TH AVE N Sold

    $1,395,000

    744 47TH AVE N, ST PETERSBURG, FL 33703

    • 5 Beds
    • 4 Baths
    • 3,442 Sq.Ft.
  • 876 44TH AVE N Sold

    $1,395,000

    868 44TH AVE N, ST PETERSBURG, FL 33703

    • 6 Beds
    • 4 Baths
    • 3,362 Sq.Ft.
  • 201 34TH AVE N Sold

    $1,375,000

    201 34TH AVE N, ST PETERSBURG, FL 33704

    • 4 Beds
    • 3 Baths
    • 2,871 Sq.Ft.
  • 428 11TH AVENUE NE Sold

    $1,370,000

    428 11TH AVE NE, ST PETERSBURG, FL 33701

    • 3 Beds
    • 4 Baths
    • 2,251 Sq.Ft.
  • 203 34TH AVE N Sold

    $1,352,000

    203 34TH AVE N, ST PETERSBURG, FL 33704

    • 4 Beds
    • 3 Baths
    • 2,834 Sq.Ft.
  • 745 39TH AVENUE N Sold

    $1,341,000

    745 39TH AVE N, ST PETERSBURG, FL 33703

    • 5 Beds
    • 3 Baths
    • 2,808 Sq.Ft.
  • 1428 50TH AVE N Sold

    $1,325,000

    1428 50TH AVE N, ST PETERSBURG, FL 33703

    • 5 Beds
    • 3 Baths
    • 2,964 Sq.Ft.
  • 466 33RD AVENUE N Sold

    $1,325,000

    466 33RD AVE N, ST PETERSBURG, FL 33704

    • 4 Beds
    • 3 Baths
    • 2,753 Sq.Ft.
  • 2172 HARBOR VIEW DR Sold

    $1,312,500

    2172 HARBOR VIEW DR, DUNEDIN, FL 34698

    • 3 Beds
    • 3 Baths
    • 1,962 Sq.Ft.
  • 428 11TH AVENUE NE Sold

    $1,305,000

    428 11TH AVE NE, ST PETERSBURG, FL 33701

    • 3 Beds
    • 4 Baths
    • 2,251 Sq.Ft.
  • 420 11TH AVENUE NE Sold

    $1,295,000

    420 11TH AVE NE, ST PETERSBURG, FL 33701

    • 3 Beds
    • 4 Baths
    • 2,367 Sq.Ft.
  • 916 25TH AVENUE N Sold

    $1,295,000

    916 25TH AVE N, ST PETERSBURG, FL 33704

    • 4 Beds
    • 5 Baths
    • 2,788 Sq.Ft.
  • 876 44TH AVE N Sold

    $1,277,000

    876 44TH AVE N, ST PETERSBURG, FL 33703

    • 4 Beds
    • 3 Baths
    • 2,833 Sq.Ft.
  • 2533 DARTMOUTH AVE N Sold

    $1,275,000

    2533 DARTMOUTH AVE N, ST PETERSBURG, FL 33713

    • 4 Beds
    • 3 Baths
    • 2,833 Sq.Ft.
  • 1717 MASSACHUSETTS AVENUE NE Sold

    $1,225,000

    1717 MASSACHUSETTS AVE NE, ST PETERSBURG, FL 33703

    • 4 Beds
    • 3 Baths
    • 2,820 Sq.Ft.
  • 116 SE 20TH AVE SE Sold

    $1,220,000

    116 SE 20TH AVE SE, ST PETERSBURG, FL 33705

    • 4 Beds
    • 5 Baths
    • 2,679 Sq.Ft.
  • 810 48TH AVENUE N Sold

    $1,160,000

    810 48TH AVE N, ST PETERSBURG, FL 33703

    • 4 Beds
    • 3 Baths
    • 2,833 Sq.Ft.
View All

Follow Me On Instagram